10 Old Route 9 | Hyde Park

$9,500,000

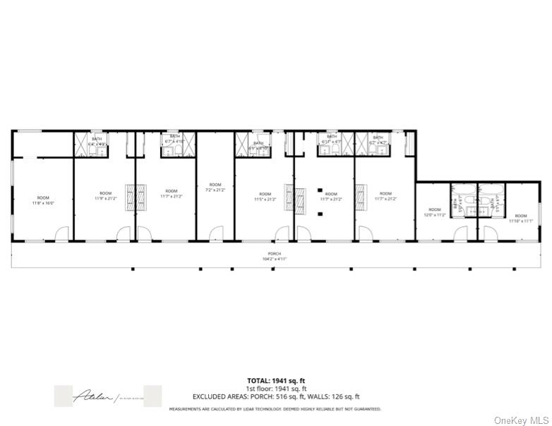
Belvedere Mansion at Pawling Manor\n\nAn Enduring Hudson Valley Landmark of Rare Pedigree\n\nSet on 9.52 secluded acres just minutes from Rhinebeck, Belvedere Mansion at Pawling Manor stands as one of the Hudson Valley OneKeyMLS 957930

Directions to property: The property is 4.1 miles south of Rhinebeck, just off of Route 9 on the east side of the road, visible from Route 9. Please park in the designated parking area.

MLS Listing ID: 
OneKeyMLS 957930
Community Information
School District: 
Other
Building Details
Details about the building on a property.
Basement: 
Full,See Remarks,Storage Space
Construction
Construction Materials: 
Frame,Unknown
Room Details
Details about the rooms in the building.
Total Bedrooms: 
0
Total Bathrooms: 
0
Total Full-Bathrooms: 
0
Total Half-Bathrooms: 
0
Utilities
Information about utilities available on the property.
Heating System: 
Forced Air
Cooling System: 
Central Air
Water Source: 
Well
Sewer: 
Septic Tank
Lot/Land Details
Details about the lots and land features included on the property.
Waterfront: 
0
Public Record
Parcel Number: 
133200-6168-03-410255-0000
Annual Tax: 
$42,186.82
Listing Dates
Dates involved in the transaction.
Listing Entry Date/Time: 
2/3/2026
Listing Participants
Participants (agents, offices, etc.) in the transaction.
Listing Agent Name: 
Wendy Maitland
Listing Office Name: 
Atelier WM LLC