300 Hooker Avenue | Poughkeepsie

$265,000

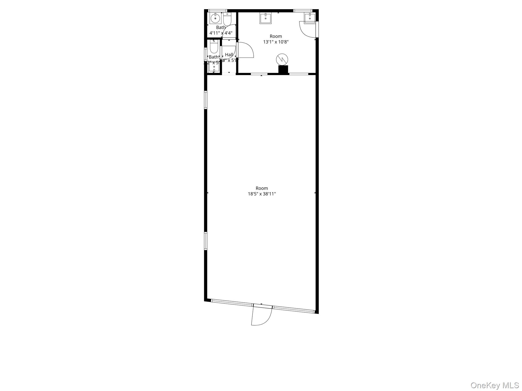
AMAZING OWNER OCCUPIER OPPORTUNITY! 300 Hooker Avenue in the Town of Poughkeepsie is a retail storefront/restaurant building located near Vassar College that has been gutted and partially updated for the new owners to put their finishing touches on. The site features municipal water, sewer, natural gas and heavy power, given its past life as a successful pizzeria for many years! Several pieces of restaurant equipment could also be available for purchase, including a pizza oven, commercial hood, lowboy coolers, and storage racks (everything you see in pictures). SELLER FINANCING AVAILABLE! OneKeyMLS 922646

MLS Listing ID: 
OneKeyMLS 922646
Community Information
School District: 
Other
Building Details
Details about the building on a property.
Year Built: 
1960
Construction
Construction Materials: 
Frame
Room Details
Details about the rooms in the building.
Total Bedrooms: 
0
Total Bathrooms: 
0
Total Full-Bathrooms: 
0
Total Half-Bathrooms: 
0
Utilities
Information about utilities available on the property.
Heating System: 
Natural Gas
Cooling System: 
Central Air
Water Source: 
Public
Sewer: 
Public Sewer
Lot/Land Details
Details about the lots and land features included on the property.
Lot Size (Area): 
3,485
Waterfront: 
0
Public Record
Parcel Number: 
134689-6161-04-636421-0000
Annual Tax: 
$8,965.00
Listing Dates
Dates involved in the transaction.
Listing Entry Date/Time: 
10/10/2025
Listing Participants
Participants (agents, offices, etc.) in the transaction.
Listing Agent Name: 
Justin M. LaFalce
Listing Co-Agent Name: 
Don Minichino
Listing Office Name: 
KW MidHudson
Listing Co-Office Name: 
KW MidHudson