12 Liberty Street | Newburgh (City)

$499,000

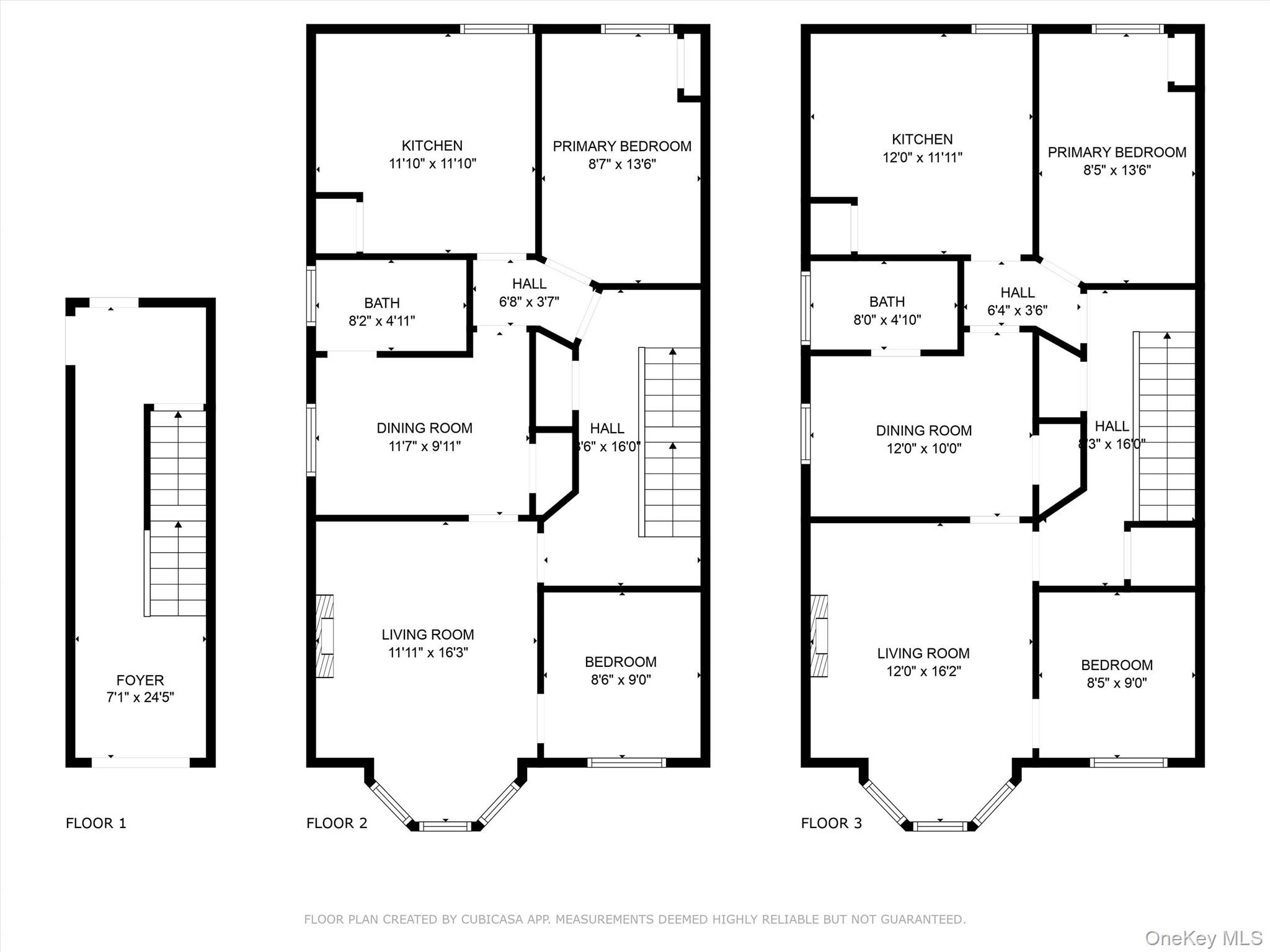
Prime Investment Opportunity. This renovated mixed-use building offers immediate income potential with both residential and commercial spaces. Spanning approximately 3,650 square feet across three levels, the property includes a highly visible storefront on Liberty Street plus two updated residential apartments above.\n\nThe commercial space features an open layout ready to be customized for retail, office, or service businesses. Upstairs, the residential portion consists of two refreshed 2 bedroom, 1 bath apartments, each updated with modern finishes, fixtures, and thoughtful improvements. These units are move-in ready and positioned to attract quality tenants.\n\nIdeal for an owner occupant who wants to live in one, rent out the others, a business owner looking for an ideal location with investment income to cover costs, or a savvy investor looking to rent out all three units. In all cases, anyone will benefit from multiple revenue streams, immediate leasing potential, and minimal upfront work. The property OneKeyMLS 911412

MLS Listing ID: 
OneKeyMLS 911412
Community Information
School District: 
Other
Building Details
Details about the building on a property.
Year Built: 
1975
Basement: 
Finished,Full
Construction
Construction Materials: 
Brick
Room Details
Details about the rooms in the building.
Total Bedrooms: 
0
Total Bathrooms: 
0
Total Full-Bathrooms: 
0
Total Half-Bathrooms: 
0
Utilities
Information about utilities available on the property.
Heating System: 
Natural Gas
Cooling System: 
None
Water Source: 
Public
Sewer: 
Public Sewer
Lot/Land Details
Details about the lots and land features included on the property.
Lot Size (Area): 
2,500
Waterfront: 
0
Public Record
Parcel Number: 
331100-046-000-0001-023.000-0000
Annual Tax: 
$8,552.03
Listing Dates
Dates involved in the transaction.
Listing Entry Date/Time: 
9/26/2025
Listing Participants
Participants (agents, offices, etc.) in the transaction.
Listing Agent Name: 
Virginia Corbett
Listing Office Name: 
eXp Realty