28 & 29 Walnut Street | New Windsor

$850,000

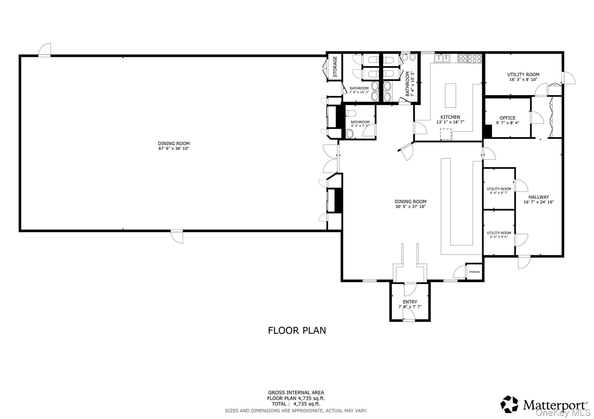
This property is zoned Planned Industrial (PI). It must be used for a similar function by an organization. Any change in usage would have to be approved by the planning board. There are multiple entrances for meetings/functions. Enter into the bar area with high top tables. The dining area opens to the commercial kitchen with an up-to-date Ansell fire protection system over the 10 burner Garland range with dual ovens. There is a meeting room/hall that seats over 100 for parties with additional space for a stage. There is cental air throughout the building with built-in wall units in the private office. Storage abounds with a walk-in cooler and tap room, a locked room to secure beverages plus commercial ice machine and additional rooms for supplies. The large flat parking lot has room for over 50 cars. OneKeyMLS 914255

MLS Listing ID: 
OneKeyMLS 914255
Community Information
School District: 
Other
Building Details
Details about the building on a property.
Stories: 
1
Year Built: 
1957
Basement: 
None
Construction
Construction Materials: 
Block,Frame,Wood Siding
Room Details
Details about the rooms in the building.
Total Bedrooms: 
0
Total Bathrooms: 
0
Total Full-Bathrooms: 
0
Total Half-Bathrooms: 
0
Utilities
Information about utilities available on the property.
Heating System: 
Hot Water,Natural Gas
Cooling System: 
Central Air,Wall/Window Unit(s)
Water Source: 
Public
Sewer: 
Public Sewer
Lot/Land Details
Details about the lots and land features included on the property.
Lot Size (Area): 
21,920
Waterfront: 
0
Lot Features
Parking Type: 
Off Street,Oversized,Parking Lot
Fence: 
None
Public Record
Parcel Number: 
334800-018-000-0001-012.000-0000
Annual Tax: 
$15,881.00
Listing Dates
Dates involved in the transaction.
Listing Entry Date/Time: 
9/19/2025
Contract Details
Details about the listing contract.
Disclosures: 
Lead Paint,Seller Property Disclosure
Listing Participants
Participants (agents, offices, etc.) in the transaction.
Listing Agent Name: 
Frank P Gerbes
Listing Office Name: 
RE/MAX Benchmark Realty Group