2039 State Route 208 | Montgomery

$547,000

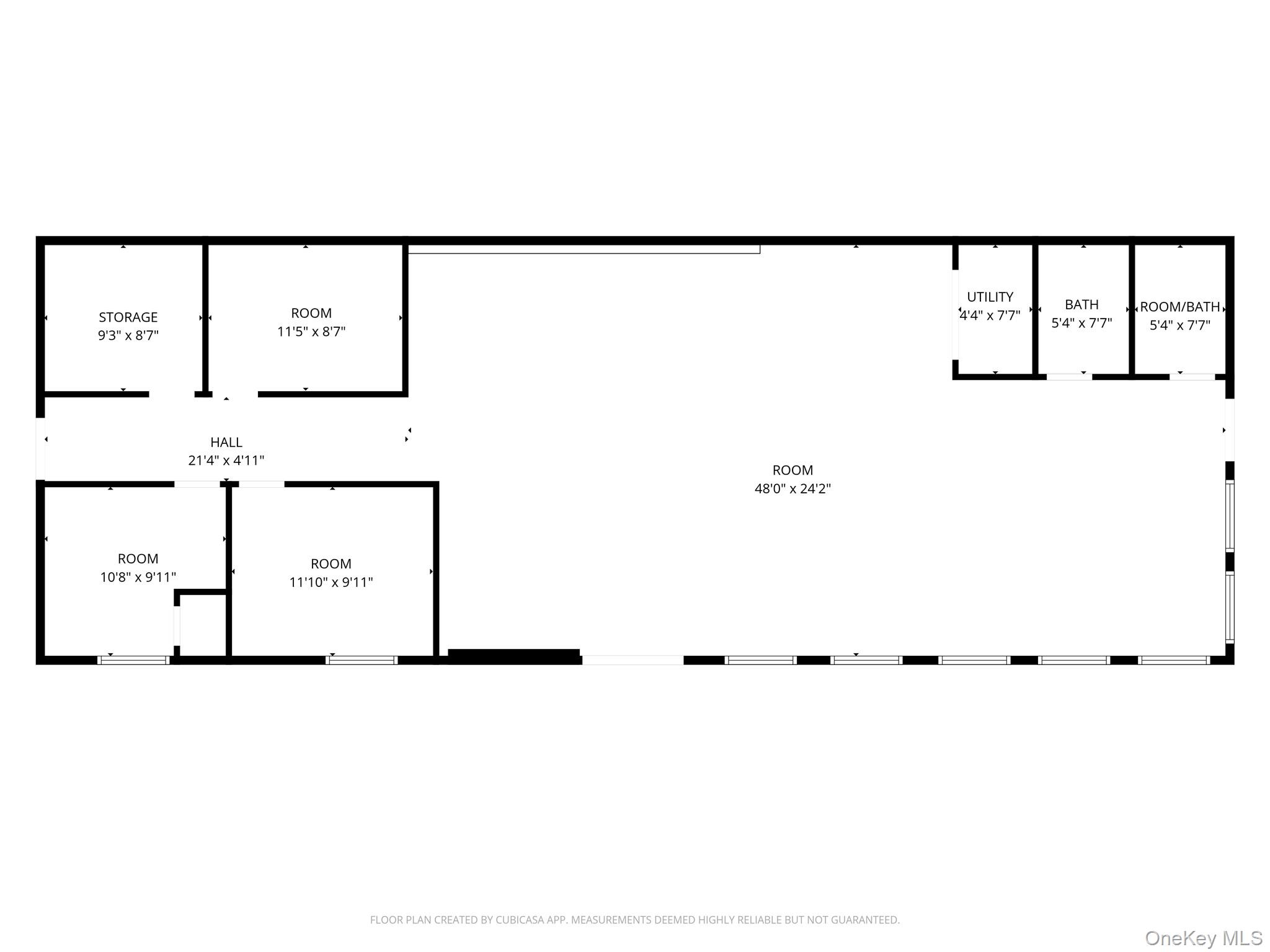
Position your business for success with this outstanding commercially zoned (B-1) property ideally located seconds from Exit 5 on Interstate 84 visible to over 14000 vehicles per day in the heart of Montgomery. Offering excellent visibility and strong sightlines, this exceptionally well-maintained building benefits from steady traffic flow and easy accessibility. Currently operating as a successful salon, the property provides exceptional versatility for a wide range of permitted uses under B-1 zoning, including retail, office and service-oriented businesses. Previously home to a deli, the building retains an existing exhaust system and even a drive-up window - making it attractive for food service or grab-and-go concepts. The site includes 19 dedicated parking spaces and is surrounded by national retailers, popular fast-food establishments and other established businesses, enhancing both exposure and customer draw. Whether you're an owner-user looking to establish or expand your business, or an investor seeking a flexible, income-producing asset, this property offers a strategic location, strong visibility and endless potential. OneKeyMLS 976242

Directions to property: 1/4 MILE SOUTH OF RT 84

MLS Listing ID: 
OneKeyMLS 976242
Community Information
School District: 
Other
Building Details
Details about the building on a property.
Stories: 
1
Year Built: 
2001
Construction
Construction Materials: 
Frame
Room Details
Details about the rooms in the building.
Total Bedrooms: 
0
Total Bathrooms: 
0
Total Full-Bathrooms: 
0
Total Half-Bathrooms: 
0
Utilities
Information about utilities available on the property.
Heating System: 
Ducts,Forced Air
Cooling System: 
Central Air
Water Source: 
Public
Sewer: 
Public Sewer
Lot/Land Details
Details about the lots and land features included on the property.
Lot Size (Area): 
21,600
Waterfront: 
0
Lot Features
Parking Type: 
Parking Lot
Public Record
Parcel Number: 
334289-034-000-0001-014.100-0000
Annual Tax: 
$11,465.00
Listing Dates
Dates involved in the transaction.
Listing Entry Date/Time: 
4/1/2026
Contract Details
Details about the listing contract.
Disclosures: 
None
Listing Participants
Participants (agents, offices, etc.) in the transaction.
Listing Agent Name: 
Laurel P Lustgarten
Listing Co-Agent Name: 
Jay A Himelson
Listing Office Name: 
Howard Hanna Rand Realty
Listing Co-Office Name: 
Howard Hanna Rand Realty