2365 Boston Post Road, 101 | Mamaroneck

$27

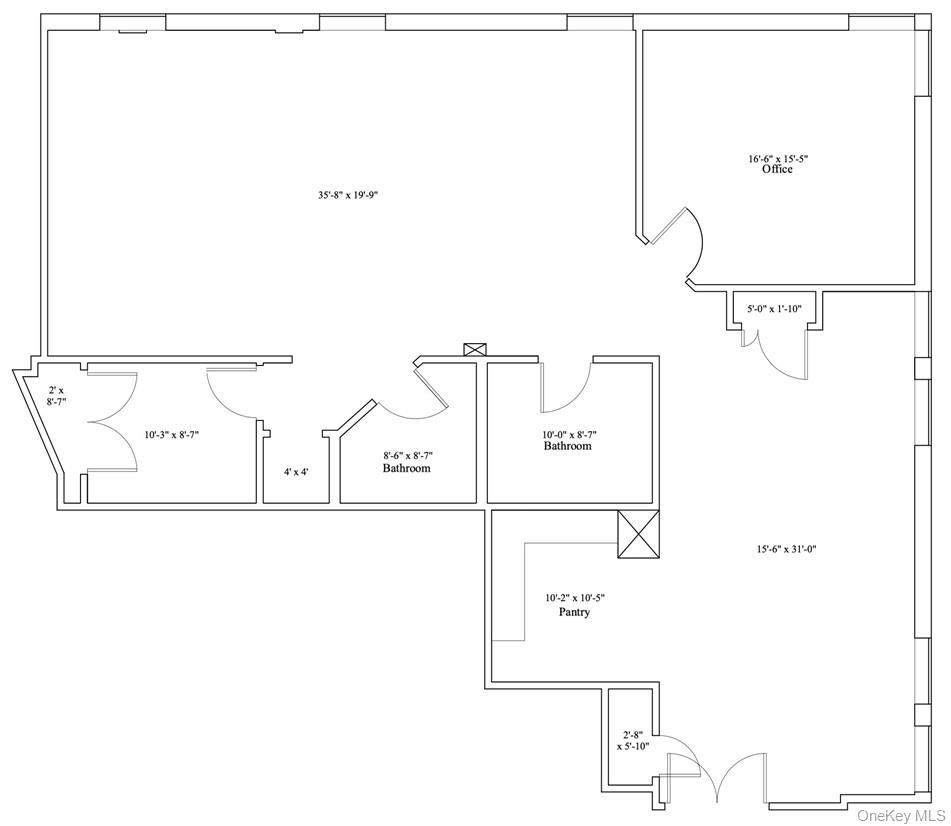
Turnkey and Renovated Medical Office Suite. Ideal for General Practitioners, Pediatricians, Physicians, Immunologists, etc. Great for Professional use as well.\n2,420 SF (+/-). Layout includes Two Large Open Spaces, One Office, Two ADA Accessible Private Bathrooms, Kitchen, Storage. Floor has Two Concrete Pads for Medical Imaging Equipment. Secure Building, Well Managed and Maintained. Recently Renovated. Current tenants include Larchmont Dermatology and Boston Childrens Pediatrics.\nOver 21,000 Daily Traffic Car Count, Great Visibility OneKeyMLS H6162443

MLS Listing ID: 
OneKeyMLS H6162443
Community Information
School District: 
Other
Room Details
Details about the rooms in the building.
Total Bedrooms: 
0
Total Bathrooms: 
0
Total Full-Bathrooms: 
0
Total Half-Bathrooms: 
0
Utilities
Information about utilities available on the property.
Heating System: 
Forced Air,Natural Gas
Cooling System: 
Central Air
Water Source: 
Public
Sewer: 
Public Sewer
Lot/Land Details
Details about the lots and land features included on the property.
Waterfront: 
0
Listing Dates
Dates involved in the transaction.
Listing Entry Date/Time: 
1/20/2022
Listing Participants
Participants (agents, offices, etc.) in the transaction.
Listing Agent Name: 
Barbara R. Huber
Listing Office Name: 
Houlihan Lawrence Corporate