56 Emerson Street | Kingston

$945,900

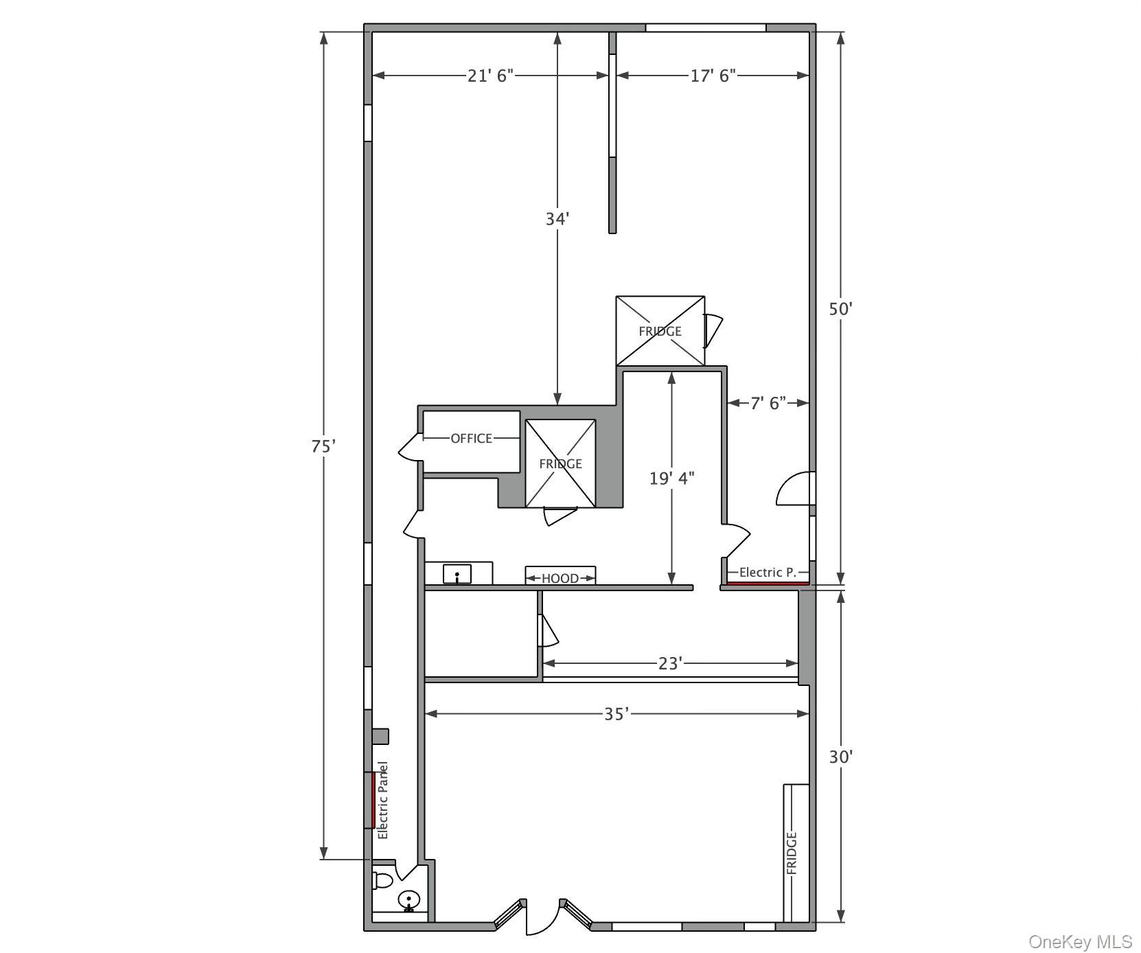
A Once-in-a-Lifetime Opportunity to Own the Only Commercial Property in One of Uptown Kingston's Most Desirable Neighborhoods OneKeyMLS 885073

Directions to property: Address is GPS friendly

MLS Listing ID: 
OneKeyMLS 885073
Community Information
School District: 
Other
Building Details
Details about the building on a property.
Stories: 
1
Year Built: 
1940
Construction
Construction Materials: 
Stone,Wood Siding
Room Details
Details about the rooms in the building.
Total Bedrooms: 
0
Total Bathrooms: 
0
Total Full-Bathrooms: 
0
Total Half-Bathrooms: 
0
Utilities
Information about utilities available on the property.
Heating System: 
Hot Air,Natural Gas
Cooling System: 
Central Air
Water Source: 
Public
Sewer: 
Public Sewer
Lot/Land Details
Details about the lots and land features included on the property.
Lot Size (Area): 
3,960
Waterfront: 
0
Lot Features
Parking Type: 
On Street
Public Record
Parcel Number: 
0800-056.090-0006-033.000-0000
Annual Tax: 
$16,672.56
Listing Dates
Dates involved in the transaction.
Listing Entry Date/Time: 
7/3/2025
Listing Participants
Participants (agents, offices, etc.) in the transaction.
Listing Agent Name: 
Christina A. Ahouse
Listing Office Name: 
Four Seasons Sothebys Intl