18 Scotchtown Avenue | Goshen

$499,000

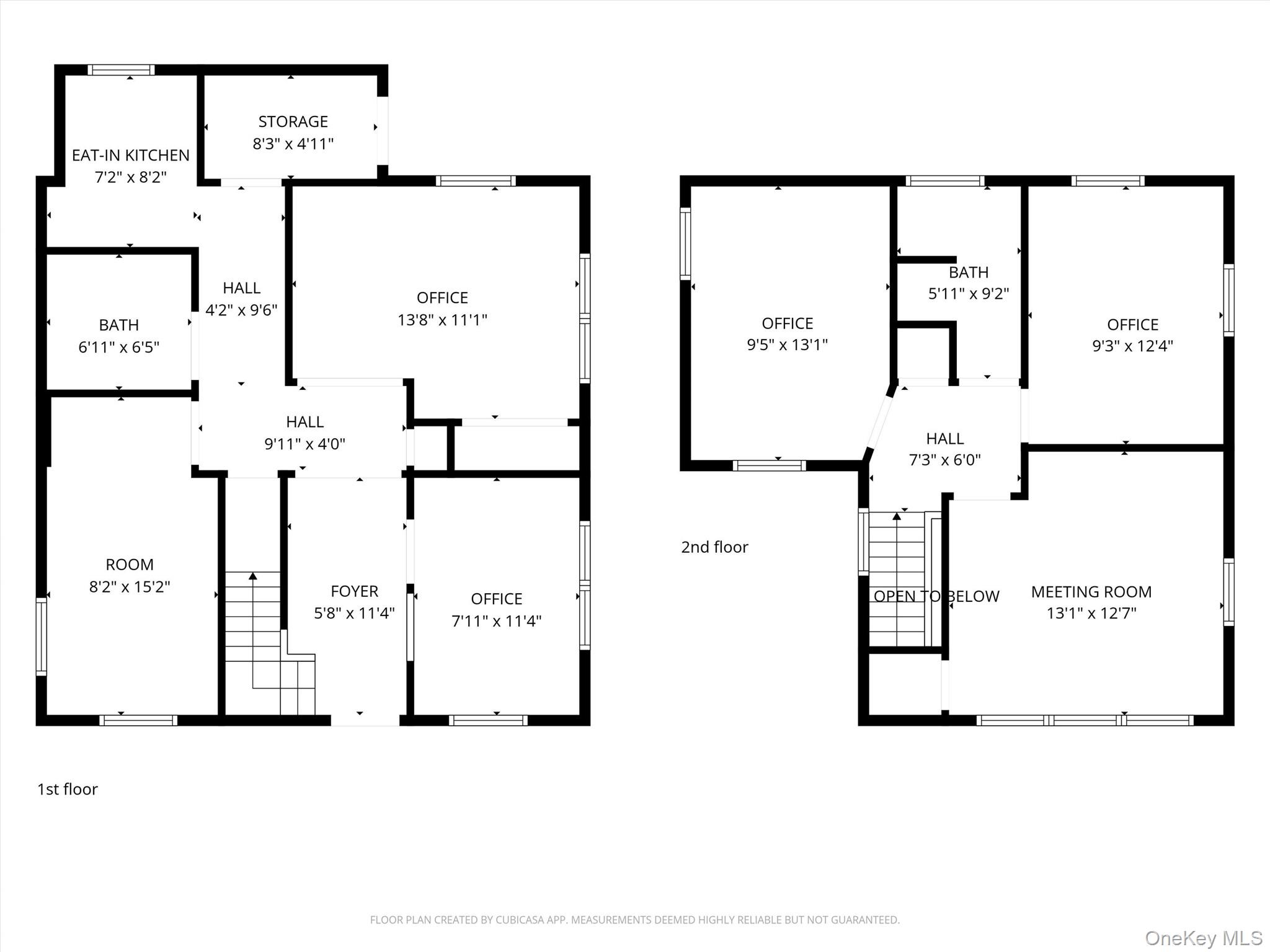
Location Location Location. One of if not the closest office space door to door with the Orange County Government Center. Quality finish throughout. OneKeyMLS 945135

MLS Listing ID: 
OneKeyMLS 945135
Community Information
School District: 
Other
Building Details
Details about the building on a property.
Year Built: 
1900
Construction
Construction Materials: 
Frame
Room Details
Details about the rooms in the building.
Total Bedrooms: 
0
Total Bathrooms: 
0
Total Full-Bathrooms: 
0
Total Half-Bathrooms: 
0
Utilities
Information about utilities available on the property.
Heating System: 
Electric,Heat Pump
Cooling System: 
Central Air
Water Source: 
Public
Sewer: 
Public Sewer
Lot/Land Details
Details about the lots and land features included on the property.
Waterfront: 
0
Lot Features
Parking Type: 
Off Street,Parking Lot
Public Record
Parcel Number: 
333001-104-000-0002-063.000-0000
Annual Tax: 
$11,300.00
Listing Dates
Dates involved in the transaction.
Listing Entry Date/Time: 
12/18/2025
Listing Participants
Participants (agents, offices, etc.) in the transaction.
Listing Agent Name: 
James A Hawkins
Listing Office Name: 
D.L. Hawkins Realty LLC