3480 Route 208, 1 | Hamptonburgh

$3,900

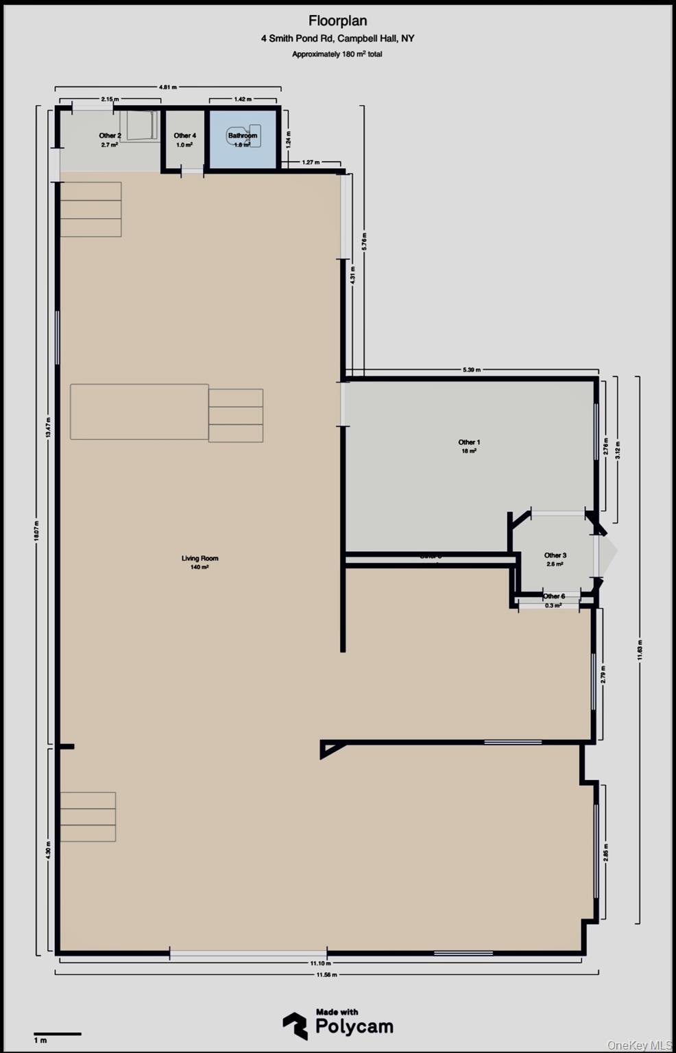
This historic and rare Campbell Hall Commercial building is said to have been built by The Borden Cheese Company back in the 1940's. It is an impressive space and well suited for distribution, warehouse, storage and so much more. Located in a very central location, you can be in the surrounding communities and to the major traffic corridors in minutes. This building offers high ceilings, an open floor plan, a private loading dock with great clearance and a power overhead door. There is an independent entrance that opens into a reception / office space. There are two additional and convenient rooms for either office or production space, in addition to the main floor space. There is an overhead hoist/lift that was previously used in the repair of fork lifts and other heavy duty Industrial equipment. \n\nProperty class; Other Storage, Warehouse and Distribution Facilities (449) Zoning / Rural Preserve (R-4A) OneKeyMLS 932329

Directions to property: GPS / WAZE \nThis site sits at the crossroads of Route 208 & 207 in Campbell Hall.

MLS Listing ID: 
OneKeyMLS 932329
Community Information
School District: 
Other
Building Details
Details about the building on a property.
Stories: 
1
Year Built: 
1940
Construction
Construction Materials: 
Brick
Room Details
Details about the rooms in the building.
Total Bedrooms: 
0
Total Bathrooms: 
0
Total Full-Bathrooms: 
0
Total Half-Bathrooms: 
0
Utilities
Information about utilities available on the property.
Heating System: 
Hot Air
Cooling System: 
Electric
Water Source: 
Well
Sewer: 
Septic Tank
Lot/Land Details
Details about the lots and land features included on the property.
Lot Size (Area): 
270,072
Waterfront: 
0
Lot Features
Parking Type: 
Driveway,Off Street,Private
Public Record
Parcel Number: 
333489-007-000-0001-045.110-0000
Annual Tax: 
$8,550.48
Listing Dates
Dates involved in the transaction.
Listing Entry Date/Time: 
11/6/2025
Listing Participants
Participants (agents, offices, etc.) in the transaction.
Listing Agent Name: 
John J. Ricco
Listing Office Name: 
Keller Williams Realty