155 Main Street, 305 | Brewster

$500

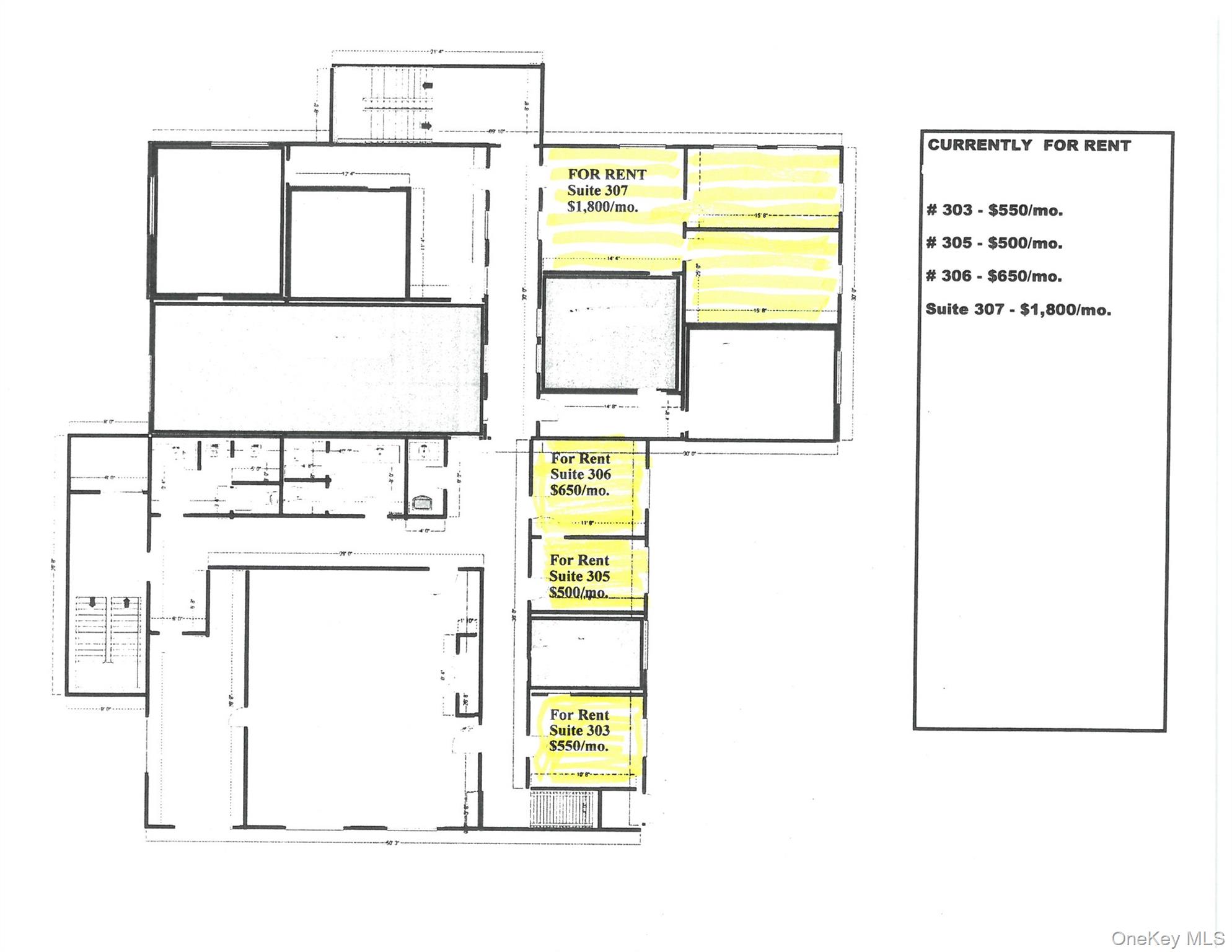
This is a single office located on top floor of professional 3-story building with street signage and elevator. Recently painted. Plenty of on-site parking. Suitable for most office type businesses. Perfect location on east side of the village, only a few blocks from train station and a minute to I-684 and I-84. OneKeyMLS 959211

Directions to property: Route 202 to Main Street, building on left (across from Amoco gas station). Main entrance is in the back of the building.

MLS Listing ID: 
OneKeyMLS 959211
Community Information
School District: 
Other
Construction
Construction Materials: 
Other
Room Details
Details about the rooms in the building.
Total Bedrooms: 
0
Total Bathrooms: 
0
Total Full-Bathrooms: 
0
Total Half-Bathrooms: 
0
Utilities
Information about utilities available on the property.
Heating System: 
Baseboard,Electric
Cooling System: 
Central Air
Water Source: 
Public
Sewer: 
Public Sewer
Lot/Land Details
Details about the lots and land features included on the property.
Waterfront: 
0
Lot Features
Parking Type: 
Parking Lot
Public Record
Parcel Number: 
373001-067-035-0001-050-000-0000
Annual Tax: 
$0.00
Listing Dates
Dates involved in the transaction.
Listing Entry Date/Time: 
2/10/2026
Listing Participants
Participants (agents, offices, etc.) in the transaction.
Listing Agent Name: 
Linda Ficarra
Listing Office Name: 
VJF Realty of Brewster Inc