2 Bedford Ridge Road | Bedford

$850,000

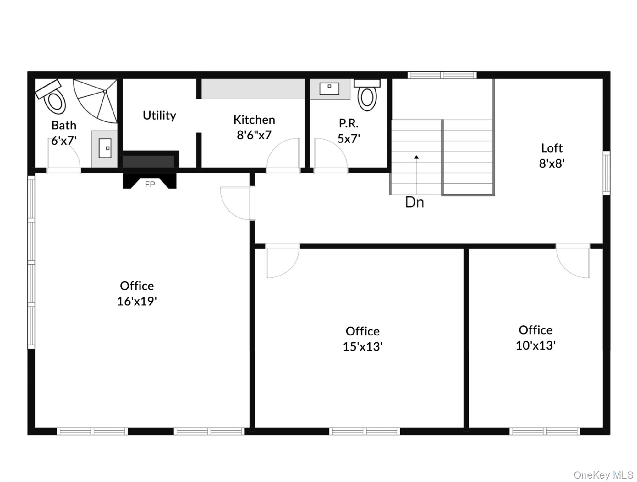
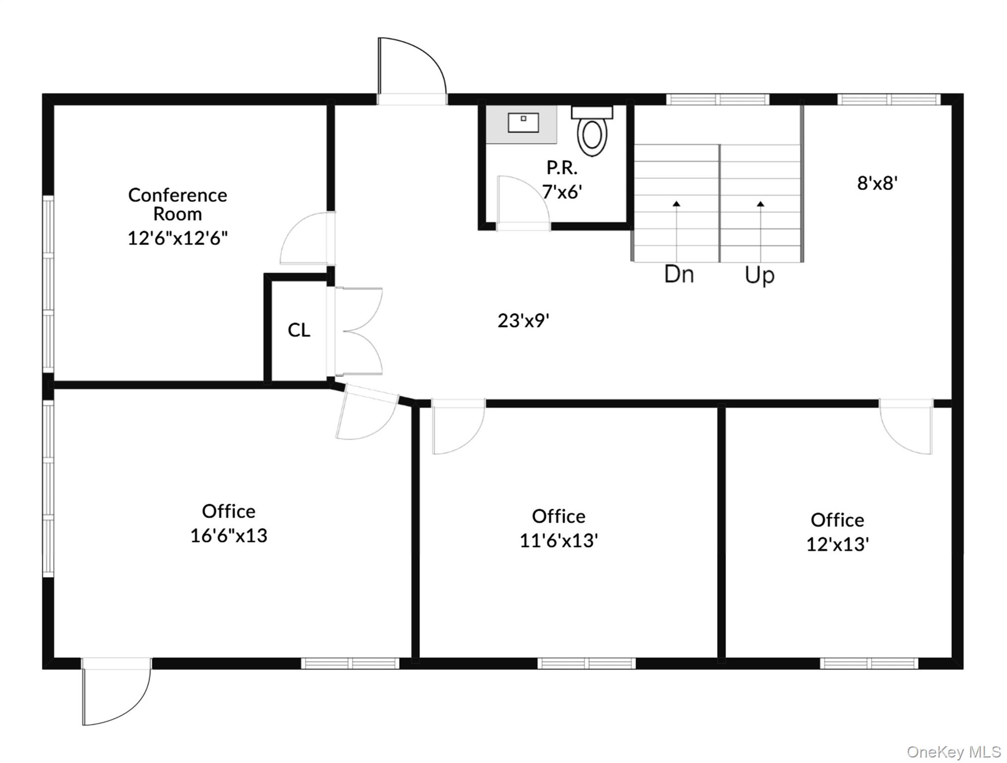
Completely renovated 3-story office building in a prime location, modern upgrades in a private, professional setting. Zoned Roadside Business on two combined tax lots, this property presents an outstanding opportunity for an end user or investor seeking a convenient location with exceptional visibility and room for future growth. The flexible layout includes six private offices (three per floor), a dedicated conference room, a kitchen/breakroom, and bathrooms on each level. One private office is equipped with its own full bathroom. The lower level has been refinished with new tile and is fully conditioned. Parking is never an issue with 12+ on-site spaces plus additional land that can accommodate potential expansion or extra parking needs. Recent renovations completed in 2020 include all new recessed lighting, flooring, and commercial carpeting, paint, trim, and upgraded interior doors. This building is fully wired for today OneKeyMLS 904383

MLS Listing ID: 
OneKeyMLS 904383
Community Information
School District: 
Bedford Central
Building Details
Details about the building on a property.
Stories: 
3
Year Built: 
1995
Basement: 
Finished,Partial
Construction
Construction Materials: 
Other
Room Details
Details about the rooms in the building.
Total Bedrooms: 
0
Total Bathrooms: 
0
Total Full-Bathrooms: 
0
Total Half-Bathrooms: 
0
Utilities
Information about utilities available on the property.
Heating System: 
Natural Gas
Cooling System: 
Central Air
Water Source: 
Public
Sewer: 
Septic Tank
Lot/Land Details
Details about the lots and land features included on the property.
Waterfront: 
0
Lot Features
Parking Type: 
Driveway,Off Site,Private
Public Record
Parcel Number: 
2000-071-012-00002-000-0014
Annual Tax: 
$21,569.00
Listing Dates
Dates involved in the transaction.
Listing Entry Date/Time: 
9/2/2025
Listing Participants
Participants (agents, offices, etc.) in the transaction.
Listing Agent Name: 
Suzanne Sanborn
Listing Co-Agent Name: 
Edward Holmes
Listing Office Name: 
William Raveis Real Estate
Listing Co-Office Name: 
William Raveis-New York, LLC