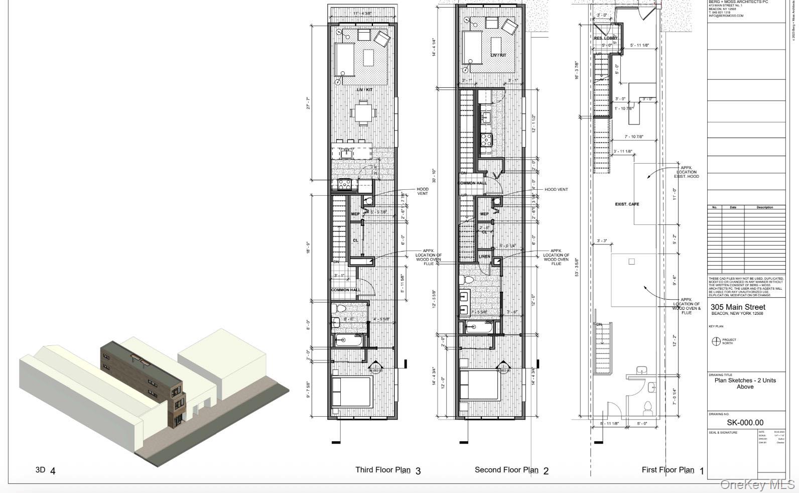
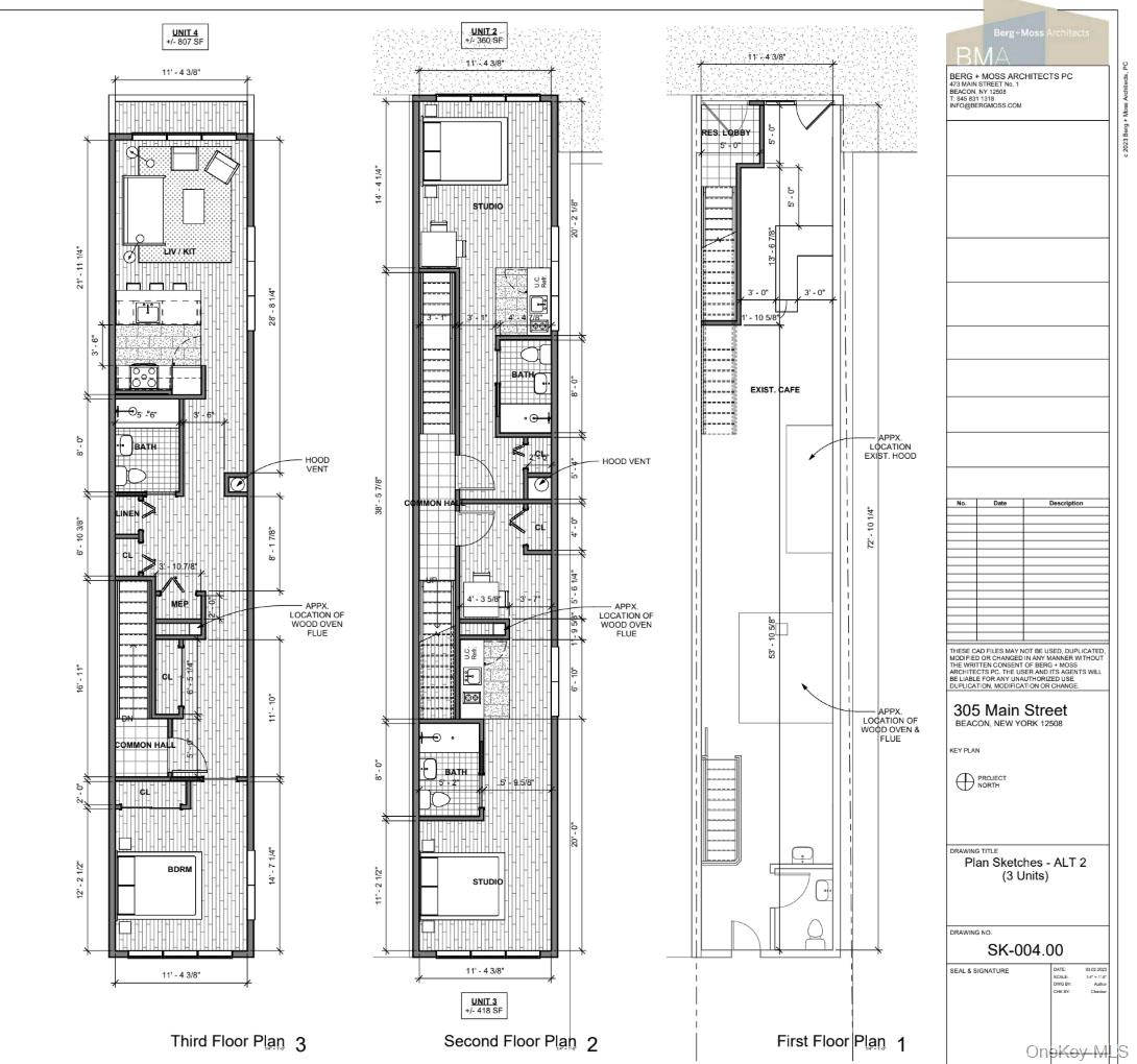
305 Main Street | Beacon

$787,500

Buy into Beacon OneKeyMLS 984587

Directions to property: Between South Brett st. and South Cedar St. On the South side of Main Street next to the Howland \nLibrary

MLS Listing ID: 
OneKeyMLS 984587
Community Information
School District: 
Other
Building Details
Details about the building on a property.
Basement: 
Bilco Door(s),Finished
Construction
Construction Materials: 
Block,Brick
Room Details
Details about the rooms in the building.
Total Bedrooms: 
0
Total Bathrooms: 
0
Total Full-Bathrooms: 
0
Total Half-Bathrooms: 
0
Utilities
Information about utilities available on the property.
Heating System: 
Electric,Heat Pump
Cooling System: 
Electric
Water Source: 
Public
Sewer: 
Public Sewer
Lot/Land Details
Details about the lots and land features included on the property.
Lot Size (Area): 
1,307
Waterfront: 
0
Lot Features
Fence: 
Back Yard,Partial,Wood
Public Record
Parcel Number: 
130200-5954-36-908866-0000
Annual Tax: 
$13,387.85
Listing Dates
Dates involved in the transaction.
Listing Entry Date/Time: 
4/13/2026
Listing Participants
Participants (agents, offices, etc.) in the transaction.
Listing Agent Name: 
Daniel L. Aubry
Listing Office Name: 
Daniel Aubry Realty, LLC